Apartment in Rua do Ouro, Lisbon

2 750€ / Month

  • 3
  • 2
  • 2
  • Usable: 72m2
  • Floor: 82m2
  • C.E.: B-
  • Year: 2016
  • Ref: 63442-MCGO62406

Location

Lisboa, Lisboa, Santa Maria Maior, Baixa (São Nicolau)

Description

Apartment in Rua do Ouro, a completely rebuilt building, located on the 4th floor opposite the former headquarters of Banco Totta & Açores.
With balcony, side view of the river and good sun exposure. Entrance from Rua do Crucifixo with concierge.
Fully furnished, equipped kitchen, lounge, 2 bedrooms with closets and two bathrooms.
Air conditioning, double-glazed windows with thermal and acoustic insulation.

Attributes

  • Heating
  • Double glazed windows
  • Dishwasher
  • Furnished
  • Concierge
  • City View
  • Air Conditioning
  • Equipped Kitchen
  • Elevator
  • Internet (cable)
  • Washing machine
  • TV
  • River views
  • Balcony
  • Alarm
  • Security Door
  • Boiler
  • Fire Detectors
  • Video Doorman
  • CCTV
  • Thermal Insulation
  • Acoustic Insulation
  • Suite
  • Good Solar Exposure
  • Electric blinds
  • Video Surveillance
  • Built-in wardrobe

Divisions

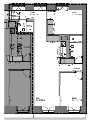
Blueprints

Floor name: House Floor 0

Division Area Note
Bedroom 11.28m2
Bedroom 10.17m2
Room 21.03m2
Kitchenette 2.53m2
WC 2.11m2
WC 4.29m2
Entrance Hall 8.67m2
Hall 3.31m2